logo dark logo light logo
  • Projektai
  • Apie mus
  • Paslaugos
  • Kontaktai
logo dark logo light logo
  • Projektai
  • Apie mus
  • Paslaugos
  • Kontaktai
mobile logo
  • Projektai
  • Apie mus
  • Paslaugos
  • Kontaktai

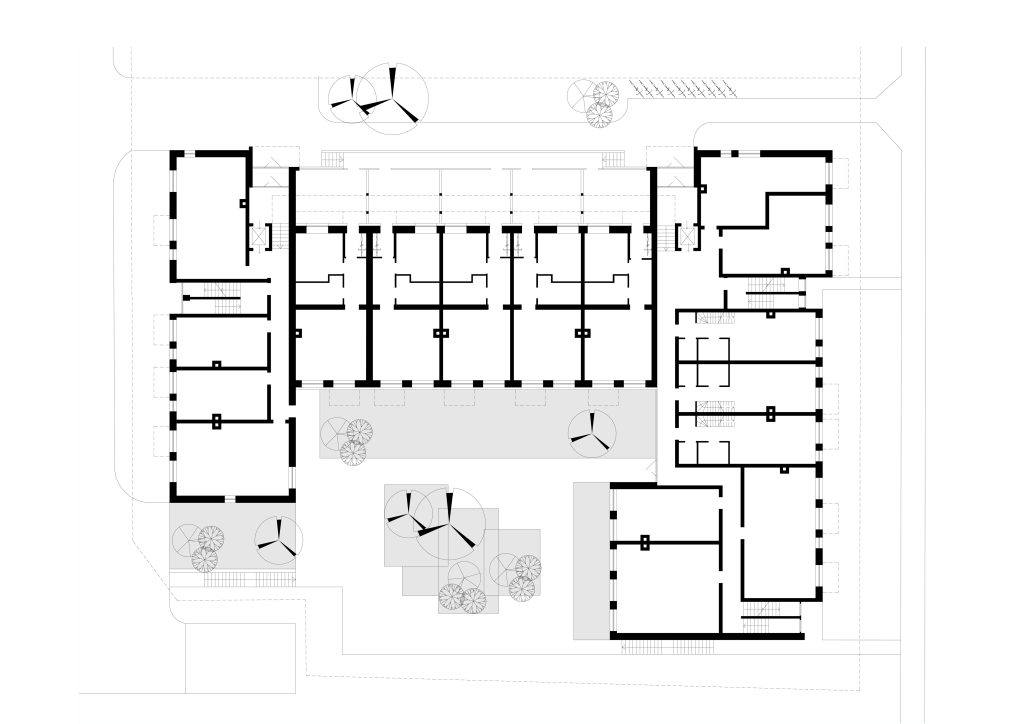
Giedraičių daugiabutis

Keičiama administracinio pastato paskirtis į gyvenamąją. Projektu siekiama sukurti funkcionalų šiuolaikiškos išraiškos pastatą, kurio fasadų sprendiniai pasižymėtų minimalizmu ir estetika. Skaidrūs langai ir proporcingai išdėstyti elementai suteikia pastatui šviesumo ir erdvės jausmą. Pastatas įsikūręs strategiškai patogioje vietoje ir atspindi modernią gyvenamosios aplinkos koncepciją.  Aukštos kokybės medžiagos ir modernūs dizaino elementai sukuria jaukią ir šiuolaikišką gyvenamąją erdvę.

Daugiabutis keturių aukštų pastatas yra ne tik gyvenamoji erdvė, bet ir urbanistinis ženklas, kuris atspindi šiuolaikines gyvenimo būdo tendencijas ir siekį gyventi patogiai bei kokybiškai.

Paskirtis

Gyvenamasis

Vieta

Vinius

Metai

2015

Plotas

Antžeminė dalis ~ 4600 kv. m., požeminė dalis ~ 1700 kv. m.

Statusas

Projektiniai pasiūlymai – konkursas

Autoriai

PDV Arch. Regina Venckievič

UAB Erinar
Lukiškių g. 5-301
LT-01108 Vilnius

+370 623 34445

info@erinar.lt